Description
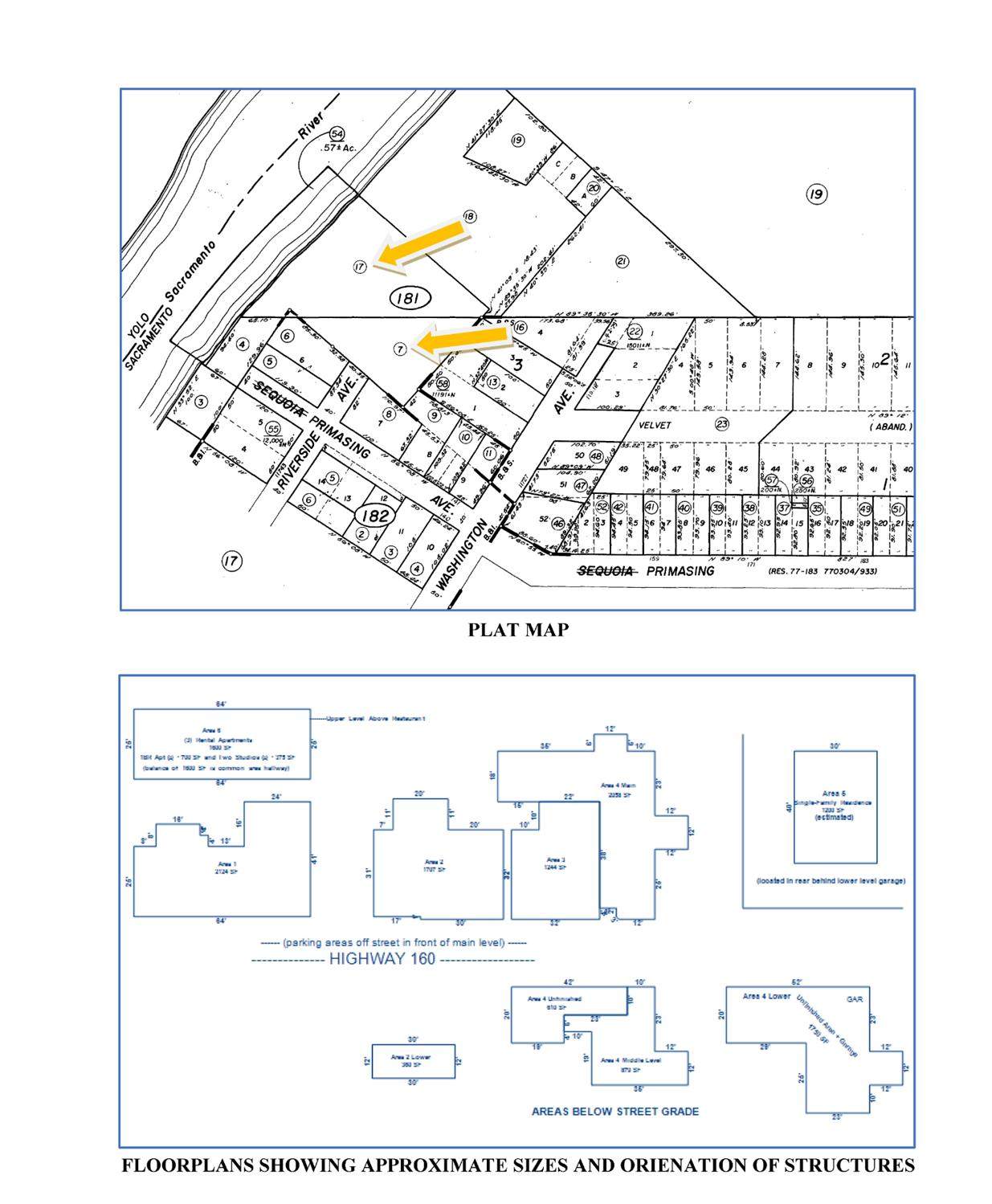
GREAT DEVELOPMENT OPPORTUNITY / LOCATION AND ADDED VALUES. The subject is a mixed-use property consisting of two assembled parcels. Located in the large Sacramento Delta region to the west of Interstate 5 between Sacramento and Stockton. The property consists of four structures currently configured into four retail spaces, a detached single-family residence and three apartments at the upper level above a restaurant use. The structures are indicated by the county to have been built in 1905 and 1910; likely the initial development was expanded and modified over the years. The primary retail space was occupied by the recently deceased owner for his medical practice as the community's family doctor for decades. The second primary retail space has been used as a restaurant for decades. The other two retail spaces have not been leased for years (one approximately 25 years) by the choice of the owner. The single-family residence has been leased for years to a long-term tenant, as has one of the apartments, while the other two apartments have not been offered for lease for a period of years. Total site size is just under 1.3 acres and the gross building areas total over 11,000 square feet. The property has been under the same family ownership since the 1970s.
-
0BEDS
-
1.29ACRES
-
0BATHS
-
01/2 BATHS
-
11,172SQFT
-
$106$/SQFT
School Ratings & Info
Description
GREAT DEVELOPMENT OPPORTUNITY / LOCATION AND ADDED VALUES. The subject is a mixed-use property consisting of two assembled parcels. Located in the large Sacramento Delta region to the west of Interstate 5 between Sacramento and Stockton. The property consists of four structures currently configured into four retail spaces, a detached single-family residence and three apartments at the upper level above a restaurant use. The structures are indicated by the county to have been built in 1905 and 1910; likely the initial development was expanded and modified over the years. The primary retail space was occupied by the recently deceased owner for his medical practice as the community's family doctor for decades. The second primary retail space has been used as a restaurant for decades. The other two retail spaces have not been leased for years (one approximately 25 years) by the choice of the owner. The single-family residence has been leased for years to a long-term tenant, as has one of the apartments, while the other two apartments have not been offered for lease for a period of years. Total site size is just under 1.3 acres and the gross building areas total over 11,000 square feet. The property has been under the same family ownership since the 1970s.
Related Properties
© 2025 MetroList® MLS. All rights reserved. All measurements and all calculations of area are approximate. Information provided by Seller/Other sources, not verified by Broker. All interested persons should independently verify accuracy of information. Provided properties may or may not be listed by the office/agent presenting the information. Data last updated 2025-12-05T11:38:55.963. MetroList® MLS Terms of Use. IDX provided by BoomTown.